The Oswald Loft is a 500 SF Loft for urban residents that can be coupled and stacked with other units. Units are designed to maximize the size of living space and have efficiently designed kitchen, bath and closets. The 10 foot ceiling heights and open truss ceilings make the units feel spacious. Surfboards, Kayaks and Bikes can hang from the ceiling. The Oswald Loft can be used for singles, couples, students, senior housing or urban pied-à-terres.
This is a view towards the living area with Kitchen and sleeping area to the left.
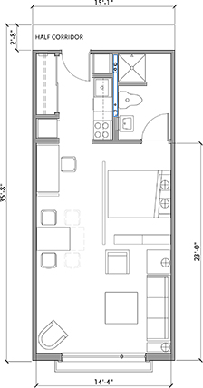
The floor plan.
This is one example of a project that Oswald Loft units could be assembled into: 56 units, 4 stories of residential units over a concrete foundation. Stairs, elevator, roof, exterior siding and site work would be completed by a general contractor on site.
<
>
Oswald Loft TM
< Home
< Modular Residential Units
< ImHomeToo
Columbia River at Astoria, Oregon
< Kah San Studio
Oswald Loft
> Kah San One
> Kah San Two
> Units: How they work
Copyright © 2014 Emmons Modular
> Future Units