The Kah San Studio is a 375 SF unit that can be coupled and stacked with other units. Designed for urban individuals, the Kah San Studio provides residents with a private self-supporting unit. Units are accessible, and include a full bath and full kitchen. There is much natural light and cross ventilation. The unit’s mini-split heat pump system provides very efficient heating and cooling. Kah San Studio units can be also be used for couples, students, senior housing or urban pied-à-terres. The Kah San Studio can be used for affordable or market-rate housing.
This view is of the living area looking towards the window.
Kah San Studio Kitchens are designed with a full range of equipment as well as a washer/dryer. They are efficiently designed to maximize storage and usability. A full meal for a group can easily be made here.
The Bathroom.
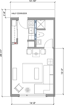
The floor plan.
The Kah San Studio living area with the kitchen and closet on the left and the bathroom on the right. The mini-split heat pump is over the bathroom door.
<
>
Kah San Studio TM
< Home
< Modular Residential Units
Kah San Studio
> Oswald Loft
> Kah San One
> Kah San Two
> Units: How they work
Copyright © 2014 Emmons Modular
> Future Units