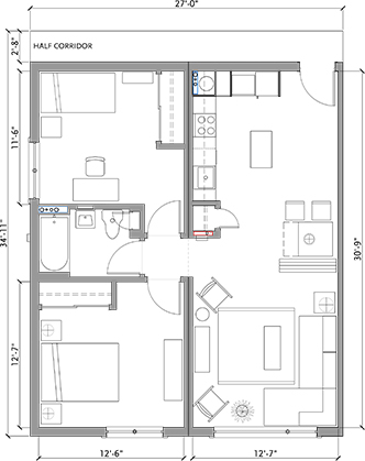
The Kah San Two is an 835 SF unit that can be coupled and stacked with other units. The spacious living area has a kitchen on one end and room for a dining table. Bedrooms are well-sized, carpeted and have large windows and closets. Mini split heat pumps can be added to maximize energy efficiency. The Kah San Two can be used for affordable or market-rate housing.
This view is of the living area looking towards the window.
Kitchen designs are similar for the Kah San One and Kah San Two units. They are efficiently designed to maximize storage and usability, but still control cost. A washer dryer, refrigerator and pantry are located along the ‘white wall’.
The kids' room.
The parents' room.
The floor plan.
Another view of the living area.
The paddles on the wall were made by 16 year old Native girls. Indigenous Art was generously lent to the project by Quintana Gallery in Portland, Oregon.
<
>
EMMONS MODULAR
HOME
Kah San Two TM
< Home
< Modular Residential Units
< ImHomeToo
Steens Mountain,
Oregon
< Kah San Studio
< Oswald Loft
< Kah San One
Kah San Two
> Units: how they work
Copyright © 2014 Emmons Modular
> Future Units