Living (similar)
Floor Plan
<
>
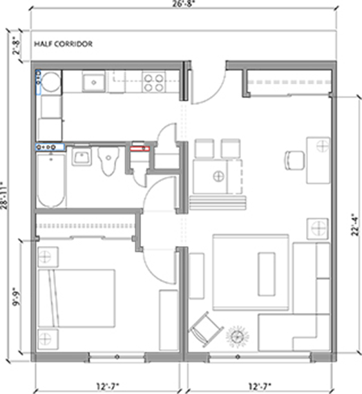
Kah San One
The Kah San One is is a modular 675 SF unit made up of two modules joined in the middle. The one bedroom apartment is designed for singles, couples, and small families. The spacious living area has a Kitchen off to the side and room for a dining table. The Bedroom is well-sized, carpeted and has large windows and a large closet. A mini split heat pump can be added to maximize energy efficiency.
The Kitchen is efficiently designed to maximize storage and usability, but still control cost. A washer dryer, refrigerator and pantry are located along the ‘white wall’.
HOME
WHY MODULAR?
CONTACT
STUART EMMONS
PRESS
RESIDENTIAL MODULES
PROJECTS
HOMELESSNESS
SHELTER MODULES
REPORTS
Eagle Creek,
Columbia Gorge,
Oregon
Copyright © 2018 Emmons Modular