Model - bird's eye view
Model - at entry
Model - looking in window
Model - looking past Kitchenette to Living area
Model - from entry
Model - from entry
Model - from entry 2
Potential exterior concept
<
>
ImHomeToo TM
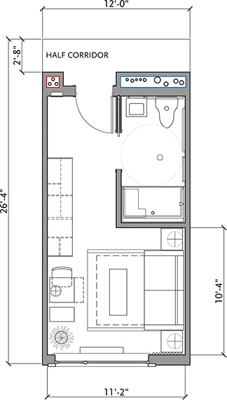
ImHomeToo TM is a 265 SF modular unit that can be coupled and stacked with other units. Designed for urban individuals experiencing homelessness who are in need of services, ImHomeToo TM provides a living unit that is warm, safe and dry and, gives dignity by providing residents with a private self-supporting unit. Units are fully accessible, and include a full bath and kitchenette. There is a lot of natural light from the large window. The unit’s heat pump system provides very efficient heating and cooling. ImHomeToo TM units can be also be used for students, senior housing or urban pied-à-terres.
All the piping is on the corridor side of the unit for ease of access and rapid hookups to building systems. Corridors are finished on site. Unit interiors are completely finished when delivered to a site.
ImHomeToo TM projects can be built up to 6 stories (5 stories shown at left), with ImHomeToo TM units installed on top of a concrete first floor. The first floor contains building support and preferred program needs. Please click on the Book icon below to see more information.
HOME
WHY MODULAR?
CONTACT
STUART EMMONS
PRESS
RESIDENTIAL MODULES
PROJECTS
HOMELESSNESS
SHELTER MODULES
REPORTS
Eagle Creek,
Columbia Gorge,
Oregon